Tranzakció adatok

Státusz: Eladó
Azonosító (ID): 360151044-792
Ingatlan ára: 149.000.000 HUF
Elérhetőség: +36-20-225-6556

Az ingatlan értékesítője

Ternyák Anita

Ternyák Anita

Gacsó Ház Ingatlaniroda és Hitelközpont

Üzenet a hirdetőnek:

Alapadatok

Elhelyezkedés:
Ráckeve
Tranzakció típusa:
Eladó
Főkategória:
vendéglátó egység
Alkategória:
szálloda, hotel, panzió
Lakóterület:
205 m2
Telek mérete:
502 m2
Szobák száma:
5
Ingatlan állapota:
épülő
Épület emelet száma:
3
Tájolás:
Dél-Nyugat
Kilátás:
tájra néző
Tetőtér:
beépíthető
Víz:
bevezetve
Csatorna:
nincs
Gáz:
bevezetve
Villany:
bevezetve

Jellegzetességek

Környezet:
Bank a közelben
 
Vidéki táj
 
Park a közelben
 
Templom a közelben
 
Bolt a közelben
 
Vízhez közel
 
Rendezett környék
 
Városközpont
 
Csendes úton
 
Strand/Fürdő a közelben
Közlekedés:
HÉV megálló a közelben
 
Buszmegálló a Közelben
Külső jellemzők:
Terasz
 
Utcafronti

Leírás

Kivételes lehetőség a Kisduna partján! – Exkluzív villaépület a dunaparti sétányán

Felújítás előtt álló villaépület keresi gondos, vizionárius új gazdáját! Ha olyan sokrétűen hasznosítható ingatlant keres, amely páratlan adottságokkal és teljes dunai panorámával rendelkezik, ezt a lehetőséget nem szabad kihagynia.

Az épület a méltán híres turisztikai látványosság, a Vízipiac területén, közvetlenül a hangulatos és csendes parti sétányon helyezkedik el.

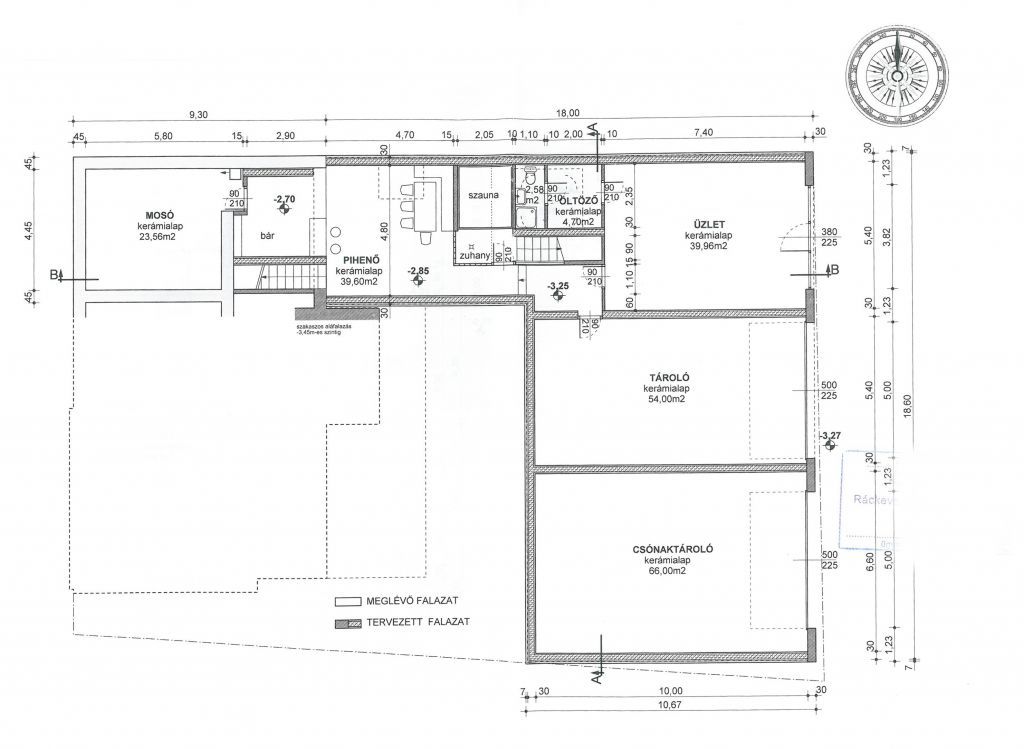
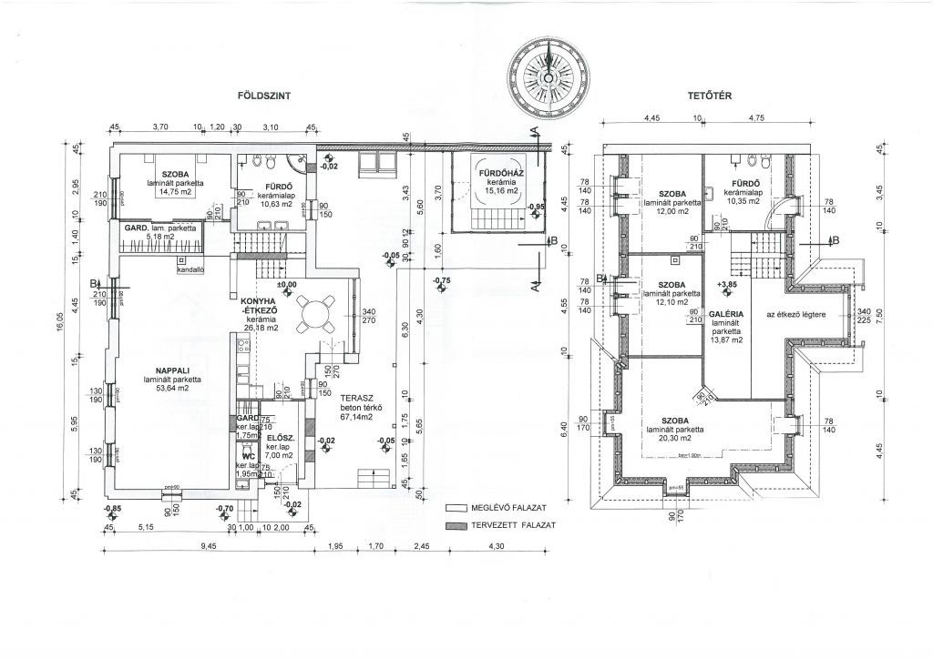
Az ingatlan főbb paraméterei:

  • Alapterület: 136 nm földszint + 67 nm részben fedett terasz; 69 nm tetőtér és a sétányról nyíló 3 bejárattal rendelkező óriási garázs / üzlethelyiség (illetve az azokat kiszolgáló helyiség) összesen 183 nm-en

  • Jelenlegi állapot: építés alatt álló, szerkezetkész állapot – így a funció, a belső terek és a végső arculat kialakítása már az új tulajdonos egyedi elképzeléseire és céljaira szabható.

  • Dokumentáció: az ingatlan azonnal átvehető, hatályos és érvényes építészeti tervekkel rendelkezik, ami jelentősen felgyorsítja a befejezési és engedélyeztetési folyamatokat.

  • Környezet: közvetlen vízparti elhelyezkedés, teljes, zavartalan panoráma a Kisdunára.

Tökéletes idilli környezet egy nívós otthon kialakítására óriás terasszal a Kisduna felé.

Vagy használja ki a benne rejlő hatalmas üzleti potenciált:

Ez a presztízsértékű épület tökéletes alapja lehet egy komplex, több lábon álló turisztikai és vendéglátóipari vállalkozásnak. A tervek és a térkialakítás az alábbi funkciók megvalósítását teszik lehetővé:

  • Vendéglátás: Kialakítható egy elegáns étterem vagy kávézó, amelyhez egy lenyűgöző, hatalmas panorámaterasz csatlakozik, közvetlen kilátással az RSD Dunára. Ez a tér önmagában is tökéletes és keresett rendezvényhelyszínként funkcionálhat (esküvők, céges események).

  • Partmenti üzletsarok: A sétány szintjén 3 külön bejáratú üzlethelyiség kapott helyet. Ezek ideálisak lehetnek streetfood  helyek, egy hangulatos parti kávézó, vagy a helyi adottságokat kihasználva egy horgászcikkbolt számára. Alternatívaként a terek közvetlen vízparti horgászszálláshelyekké is alakíthatók.

  • Prémium szálláskiadás: A tetőtérben elrendezéséből adódóan exkluzív, magas hozammal kiadható panorámás apartmanszobák építhetők ki, kiszolgálva a minőségi turizmus iránti növekvő igényt.

Ez a szerkezetkész villa nem csupán egy épület, hanem egy ritka, értékálló befektetés Ráckeve hangulatos és gyönyörű vízparti szakaszán.

(A képek között a meglévő tervrajzok és a jelenlegi elképzelések alapján létrehozott látványtervek is megtalálhatóak.)