Tranzakció adatok

Státusz: Eladó
Azonosító (ID): 360151006-507
Ingatlan ára: 46.000.000 HUF
Elérhetőség: +36-20-225-6407

Ingatlan képei

Az ingatlan értékesítője

Buzás Mária

Buzás Mária

Gacsó Ház Ingatlaniroda és Hitelközpont

Üzenet a hirdetőnek:

Alapadatok

Elhelyezkedés:
Százhalombatta
Tranzakció típusa:
Eladó
Főkategória:
lakás
Alkategória:
tégla
Lakóterület:
43 m2
Szobák száma:
1
Felújítás éve:
2025
Ingatlan állapota:
újszerű
Épület emelet száma:
3
Ingatlan emelete:
1. emelet
Tájolás:
Dél-Kelet
Kilátás:
kertre néző
Víz:
bevezetve
Csatorna:
bevezetve
Gáz:
bevezetve
Villany:
bevezetve
Fűtés:
gáz (cirkó)
Parkolás:
telken beálló
Akadálymentes:
nem

Jellegzetességek

Környezet:
Iskola a közelben
 
Rendelőintézet a közelben
 
Bolt a közelben
 
Játszótér a közelben
 
Rendezett környék
 
Gyógyszertár a közelben
 
Óvoda a közelben
Közlekedés:
Buszmegálló a Közelben
 
Vasútállomás a közelben
 
Autóút a közelben
Külső jellemzők:
Autóbeálló (kerten belül)
 
Pince

Leírás

Százhalombatta, Urbárium részén 43,13 nm-es, első emeleti, 1 szobás, összkomfortos téglaépítésű lakás ELADÓ!

A ötlakásos ház 2025-ben lesz átalakítva, kivitelezve.

 

Az emeleten két lakás a tetőtérben egy lakás lesz kialakítva. (A földszinten a két lakás eladva.)

 

A 3-as lakás 43,13 nm

 

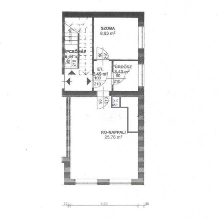
Helyiségek (3-as lakás):

1.EMELET:

    -  Szoba: 26 nm

    -  Konyha: 8,5 nm

    -  Fürdő + mellékhelyiség: 8,63 nm

 

A ház 1976-ban épült D-K tájolással. Falazata Porotherm 38-as tégla, 5 cm-es Dryvit szigeteléssel. Vasbeton gerenda födém, kontyolt tető, zsindelyborítás. A fűtést az első emeleten kondenzációs gáz cirkó biztosítja, hő leadás radiátor által. A tetőtérbe, elektromos padlófűtés terveztek. Külső nyílászáró 3 rétegű, 6 légkamrás hőszigetelt műanyag. Burkolatok: A szobákban parketta a többi helyiségben járólap lesz lerakva.

 

  • Központi helyen van, minden kényelmes sétával elérhető, mégis távol a város zajától
  • Saját mérőórák minden lakáshoz
  • Egy autóbeálló minden lakáshoz kereten belül (+ 1 megegyezés szerint)
  • 60 nm-es telekterület lakásonként
  • 2,5 nm-es pince/lakás (megegyezés szerint)
  • Választható burkolatok: 4000.-Ft./nm

 

 

Választható lakások:

Első emelet 2-es LAKÁS: 58 mill. Ft. (52,66 nm) 2 szoba, erkély

Első emelet 3-as LAKÁS: 46 mill. Ft. (43,13 nm) 1 szoba

Tetőtéri LAKÁS: 69 mill.Ft. (70 nm) 3 szoba

 

Osztatlan közös tulajdon, ügyvéd általi használati megosztással.

A Tulajdonos, elsősorban készpénzes vevők érdeklődését várja.

 

Buszmegálló, vasútállomás, vásárlási lehetőség, iskola, óvoda pár perces sétára található. 

Százhalombatta BP-től DNY-i irányban, kb.25 km távolságra, fekszik. Kiváló oktatási és nevelési intézmények, magas szintű egészségügyi ellátás, jó közbiztonság, változatos sportolási lehetőségek, játszóterek, kiemelkedő kulturális események jellemzik. A településen uszoda, strand, sportközpontok, lovarda, múzeum, hangulatos éttermek találhatóak.  A 6-os, 7-es és M6-os úton könnyedén megközelíthető a főváros.

 

-----------------------------------------------------------------------------------------------------------------

 

Gacsó Ház Ingatlanközvetítő Kft.
INGATLAN  HITEL  BIZTOSÍTÁS

 

Irodáink:

1163 Budapest, Veres Péter út 39.
2440 Százhalombatta,  Erkel Ferenc körút 1. (üzletsor)

 

Hívjon bizalommal!

Buzás Mária: +36-20-225-6407; buzas.maria@gacsohaz.hu

 

Szívügyünk az otthonod! 

Az ingatlanoknak mérete és ára van. Az otthon igazi értéke viszont felbecsülhetetlen - ezért az értékbecsléstől a birtokbaadásig végigkísérünk az ingatlan adásvétel folyamatán, hogy végig anyagi, jogi és érzelmi biztonságban legyél.

  

                                             

                                       

                                            

Helyiségek

fürdőszoba + mellékhelyiség
Alapterület: 8,63 m2
Dimenziók: -
Tájolás: -
konyha
Alapterület: 8,5 m2
Dimenziók: -
Tájolás: -
szoba
Alapterület: 26 m2
Dimenziók: -
Tájolás: -